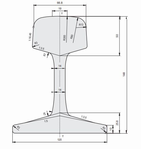
Profile MAV48 rail:

Description:
MAV48 rail manufactured according European standard EN 13674-1, with mass of 48,50 kg per meter.
Dimensions:
| Profile | Standard | Dimensions mm | Section S | Mass m | ||||
|---|---|---|---|---|---|---|---|---|
| H | B | C | D | E | cm² | kg/m | ||
| European standard EN 13674-4 | ||||||||
| MAV48 | EN 13674 – 1 | 148,00 | 120,00 | 65,80 | 50,00 | 14,00 | 61,78 | 48,50 |