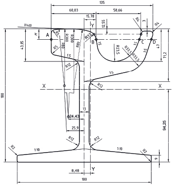
67R1 (Ph37A)

Profile 67R1 (Ph37A) rail:

ArcelorMittal
Privacy Overview

This website uses cookies so that we can provide you with the best user experience possible. Cookie information is stored in your browser and performs functions such as recognising you when you return to our website and helping our team to understand which sections of the website you find most interesting and useful.

Strictly Necessary Cookies

Strictly Necessary Cookie should be enabled at all times so that we can save your preferences for cookie settings.

Third-party Cookies

This website uses Google Analytics to collect anonymous information such as the number of visitors to the site and the most popular pages.

Keeping this cookie enabled helps us improve our website.