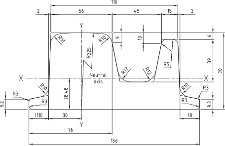
53K2 (MSzTS52) block rail profile::

Description:
Grooved Block rail 53K2 (MSzTS52) manufacture according European Standard EN 14811. Our process complies with most demanding European requirements.
Dimensions:
| Profile | Standard | Dimensions mm | Tolerance | Weight | ||||||
|---|---|---|---|---|---|---|---|---|---|---|
| H | B | C | C1 | C2 | R | E | Group | kg/m | ||
| 53K2 (MSzTS52) | EN 14811 | 70,00 | 156,00 | 116,00 | 56,00 | 45,00 | 10/225 | – | – | 53,34 |