Ribbed Accesories: Ribbed Baseplates
ArcelorMittal Europe. Long Products – Rails & Special Sections is part of the world’s number one steel company and is leader company in the railway, sheet piles and special sections products.
The rolling mills are located in Rodange (Luxembourg) and Huta Krowleska (Poland), where we produce environmentally friendly products and services for domestic and foreign market.
We are guiding the evolution of steel in the transport, high speed railway, construction, etc., to secure the best future for the industry and future generations to come.
ArcelorMittal Europe. Long Products – Rails & Special Sections has implemented and keeps update a quality assurance system that fulfills the requirements of the international standard ISO 9001, and Environmental Management System in accordance whit the International Standard ISO 14001.
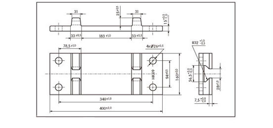
Bancadas Nervadas desde corte KRph1

Tipo de bancada Dimensiones mm Peso teórico (kg) Marca A B C D E F G Whit 4 holes Whit 2 holes H J K Rhp1-110-2 110 90 +1,0
-0,528 ±1,0 56,5 +3,0
-0,50 +1,0
-0,0ø26 ±0,8 – 5,28 Rph1 HK09 – RpIV-110* 110 – +0,5
-0,027 ±0,5 56,5 ±1,0 0,5 +1,0
-0,0– – 5,435 – HK09 – Rhp1-140/4/25 140 90 +1,0
-0,528 ±1,0 56,5 +1,5
-0,50 +1,0
-0,0ø25 ±0,2 6,79 – 49/40 HK09 – Rhp1-150 150 90 +1,0
-0,528 ±1,0 56,5 +3,0
-0,50,9 +1,0
-0,0ø26 ±0,8 7,328 7,445 Rph1 HK09 – RpIV-150 150 90 +0,5
-0,027 ±0,5 56,5 ±1,0 0,5 +1,0
-0,0ø24 +1,0
-0,07,35 – – HK09 RpIV RpIV 160 90 +0,5
-0,027 ±0,5 56,5 ±1,0 0,5 +1,0
-0,00ø24 +1,0
-0,07,86 – – HK09 RpIV Rhp1-160 160 90 +0,5
-0,028 ±1,0 56,5 +3,0
-0,50 +1,0
-0,0ø26 ±0,8 7,857 7,97 Rph1 HK09 – Rhp1-160/2d/36 160 90 +1,0
-0,528 ±1,0 56,5 +3,0
-0,50 +1,0
-0,0ø36 +1,0
-0,0– 7,88 Rph1 HK09 – Rhp1-160/79/2/33 160 – +1,0
-0,528 ±1,0 56,5 +3,0
-0,50 +1,0
-0,0ø33 +0,8
-0,2– 7,89 Rph1 HK09 – Rhp1-170/24 170 90 +1,0
-0,528 ±1,0 56,5 +3,0
-0,50 +1,0
-0,0ø24 +1,0
-0,08,44 8,54 Rph1 HK09 – Rhp1-180/26 180 90 +1,0
-0,528 ±1,0 56,5 +3,0
-0,50 +1,0
-0,0ø26 ±0,8 8,95 9,07 Rph1 HK09 – Rhp1-210/26 210 90 +1,0
-0,528 ±1,0 56,5 +3,0
-0,50 +1,0
-0,0ø26 ±0,8 10,549 10,67 Rph1 HK09 – Rhp1-210/285×140 210 140 +1,0
-0,528 ±1,0 56,5 +3,0
-0,50 +1,0
-0,0ø36 ø37
+1
-0,0
-1,0
-0,010,35
10,3110,56
10,55Rph1 HK09 – Rhp1-210/285×150 210 150 +1,0
-0,528 ±1,0 56,5 +3,0
-0,50 +1,0
-0,0ø36 ø37
+1
-0,0
-1,0
-0,010,35
10,3110,56
10,55Rph1 HK09 – Fresado sin taladro
Bancadas Nervadas Bancadas Nervadas Rps8A

Bancadas Nervadas desde corte KRph6

Tipo de bancada Dimensiones mm Peso teórico (kg) Marca A B C D E F G Whit 4 holes Whit 2 holes H J Rph6-150 150 90 +1,0
-0,528 ±1,0 56,5 +3,0
-0,50 +1,0
-0,0ø26 ±0,8 7,88 – Rph6 HK09 Rph6-160 160 90 +1,0
-0,528 ±1,0 56,5 +3,0
-0,50 +1,0
-0,0ø26 ±0,8 8,44 8,56 Rph6 HK09 RpVI 160 90 +0,5
-0,027 ±0,5 56,5 ±1,0 0,5 +01
-0,0ø24 ±0,8 8,48 – – HK09 Rph6-180/26 180 90 +1,0
-0,528 ±1,0 56,5 +3,0
-0,50 +1,0
-0,0ø26 ±0,8 9,59 9,71 Rph6 HK09 Rp6-210
(310×140)210 140 +1,0
-0,528 ±1,0 56,5 +3,0
-0,50 +1,0
-0,0ø36 +1,0 -0,0 11,11
11,0811,34
11,32Rph6 HK09 ø37 +1,0 -0,0 Rp6-210
(310×150)210 150 +1,0
-0,528 ±1,0 56,5 +3,0
-0,50 +1,0
-0,0ø36 +1,0 -0,0 11,11
11,0811,34
11,32Rph6 HK09 ø37 +1,0 -0,0 Rhp6-210/26 210 90 +1,0
-0,528 ±1,0 56,5 +3,0
-0,50 +1,0
-0,0ø26 ±0,8 11,316 11,433 Rph6 HK09 Bancadas Nervadas desde corte Rph6 /Rus - 110x265

Bancadas Nervadas Pz60A

Bancadas Nervadas desde corte KRp01/01

Tipo de bancada Dimensiones mm Peso teórico (kg) A B C D F G H Rp01/01-160 160 ±2,0 90 +0,5
-1,056,5 +3,0
-0,5285 ±1,0 ø26 ±0,8 HK09 Rp0101 7,7 Rpb1-160 160 ±2,0 90 +1,0
-0,556,5 +3,0
-0,5285 ±1,0 ø26 ±0,8 HK09 Rpb1 7,7 Rp01/01-150 150 ±2,0 94 +0,5
-1,056,5 +3,0
-0,5285 ±1,0 ø24 +1,0
-0,0HK09 Rp0101 7,2 Rp01/01-110 110 ±2,0 – 56,5 +3,0
-0,5285 ±1,0 ø26 ±0,8 HK09 Rp0101 5,19 Rpb1-110 110 ±3,0 – 56,5 +3,0
-0,5285 ±1,0 ø26 ±0,8 HK90 Rpb1 5,19 Rp01/02-160 160 ±2,0 94 +0,5
-1,056,5 +3,0
-0,5– ø26 ±0,8 HK90 Rp0102 7,83 Rp01/01-210/4/36 210 ±2,0 150 ±0,5 56,5 +3,0
-0,5285 ±1,0 ø36 +1,0
-0,0HK90 Rp0101 10,12 Rp01/01-140/4/25 140 ±3,0 80 ±0,5 56,5 +3,0
-0,5285 ±0,5 ø25 ±0,2 HK90 49/00 6,67 Rp16h * 160 ±2,0 90 +0,5
-1,056,5 +3,0
-0,5285 ±1,0 ø26 ±0,8 HK90 Rp16h 7,91 Rp01/03-160 160 ±2,0 – 56,5 +3,0
-0,5– – HK90 – 7,96 Rp01/09 ** 160 ±2,0 94 ±0,5 56,5 +3,0
-0,5285 ±1,0 ø26 ±0,8 HK90 – 7,7 ** fresado de desplazados en el eje de 25 mm
Bancadas Nervadas desde corte KSRp1(g)
Ribbed baseplate SRp1(g)Así como:
Ribbed baseplate SRp1-g2 – 2 x ø28 ± 0,2 (in milling axle)
Ribbed baseplate SRp1-g3 – (without holes)
Ribbed baseplate SRp1-g4 – 2 x ø25 ± 0,2 (on one side)Bancadas Nervadas Type Rus

Tipo de bancada Dimensiones mm Peso teórico (kg) B C D E Rus 26a 15 ±1,0 110 235 ±1,0 – 3,86 Rp 66a 15 ±1,0 110 – 90 1,53 Rus 108a 15 ±1,0 110 – 60 1,14 Rp16g-200 n/o, fr. 15 ±1,0 200 293 ±2,0 – 8,86 Rp16g n/o, fr. 15 +1,0 -0,0 160 293 ±1,0 – 7,257 Rp01/01-160/240 15 ±1,0 160 240 ±2,0 – 5,98 Rh01/01/Rus-200×280 15 ±1,0 200 280 ±2,0 – 8,55 Bancadas Nervadas Pm49

Bancadas Nervadas: Pm60

Bancadas Nervadas: Ps49A

Bancadas Nervadas: Ps60-112

Bancadas Nervadas: BL3A

Bancadas Nervadas: PT180-160

Además producimos PT180-110/2/26, PT180-110/2/28 PT180-110/2/36, PT180-110/2/37 PT180-115, PT180-130, PT180-140/2/26 PT180-140/2/34, PT180-140/6/26 PT180-140/4/26, PT180-150/4/24 PT180-150/4/26, PT180-160/2/26 Bancadas Nervadas: Pża16

Bancadas Nervadas: Pża16A

Bancadas nervadas desde corte Además producimos KPZ3 Pża18A Ps60-160/HR Ps60-150/4/25 Ps60-180/4/25 Ps60-210/4/26 KPZ3B
thickness
20 mmPża16-20 Ps60-20/112/2/26 Ps60-20/160/4/24 Ps60-20/160/2/28 Ps60-20/160/4/26 Ps60-20/180 KPZ5 Pm49-140/HR Rp50 Rpl-110 n/0, fr Rpo5e RpIVx KRpo21 Rpo21a Rpo21f Rpo21b Bancadas Nervadas: Rpl-20/4

Bancadas Nervadas desde corte KRp01/01B
Bancadas Nervadas: Pz49A

Bancadas Nervadas: P39

Bancadas Nervadas: Pżb18B

Bancadas nervadas desde corte Además producimos Krph1 Rph1 HR-160 Pżb 17 RplA-150 Rpla-160 Sph1a KRp01/01 Rpb1/SBB-160 Rp4s SR4S SRp1A SRp2 (15 +1,0 ) – -0,0 KRph6 Rph6/HR-160 Rpb25 Rph6- 150/4/32 Rph6- 150/2/32 Rph6- 190/4/26 – KRpo21 Rpo21a Rpo21f Rpo21b – – –