62R1 (NP4aM)

Perfil del carril 62R1:

carril-62r1

Descripción:

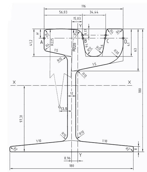
Carril modelo 62R1 (NP4aM) fabricado según la Norma Europea EN 14811, dentro de las categorías de fabricación de grupos de tolerancia G o R. Estas categorías de grupos están involucradas en la medición de la verticalidad del riel, lo que es importante para ajustar el ancho de la vía, incrustar la interacción del material y tener el mejor rendimiento de contacto entre el riel y la rueda, con una masa de 62,37 kg por metro.

Dimensiones:

Perfil Norma Dimensiones mm Tolerancia Peso
H B C C1 C2 E R Grupo kg/m
62R1 EN 14811 180 180 116 56,03 34,44 12 10/225 G or R 62,37
ArcelorMittal
Resumen de privacidad

Esta web utiliza cookies para que podamos ofrecerte la mejor experiencia de usuario posible. La información de las cookies se almacena en tu navegador y realiza funciones tales como reconocerte cuando vuelves a nuestra web o ayudar a nuestro equipo a comprender qué secciones de la web encuentras más interesantes y útiles.

Cookies estrictamente necesarias

Las cookies estrictamente necesarias tiene que activarse siempre para que podamos guardar tus preferencias de ajustes de cookies.

Analítica

Esta web utiliza Google Analytics para recopilar información anónima tal como el número de visitantes del sitio, o las páginas más populares.

Dejar esta cookie activa nos permite mejorar nuestra web.